
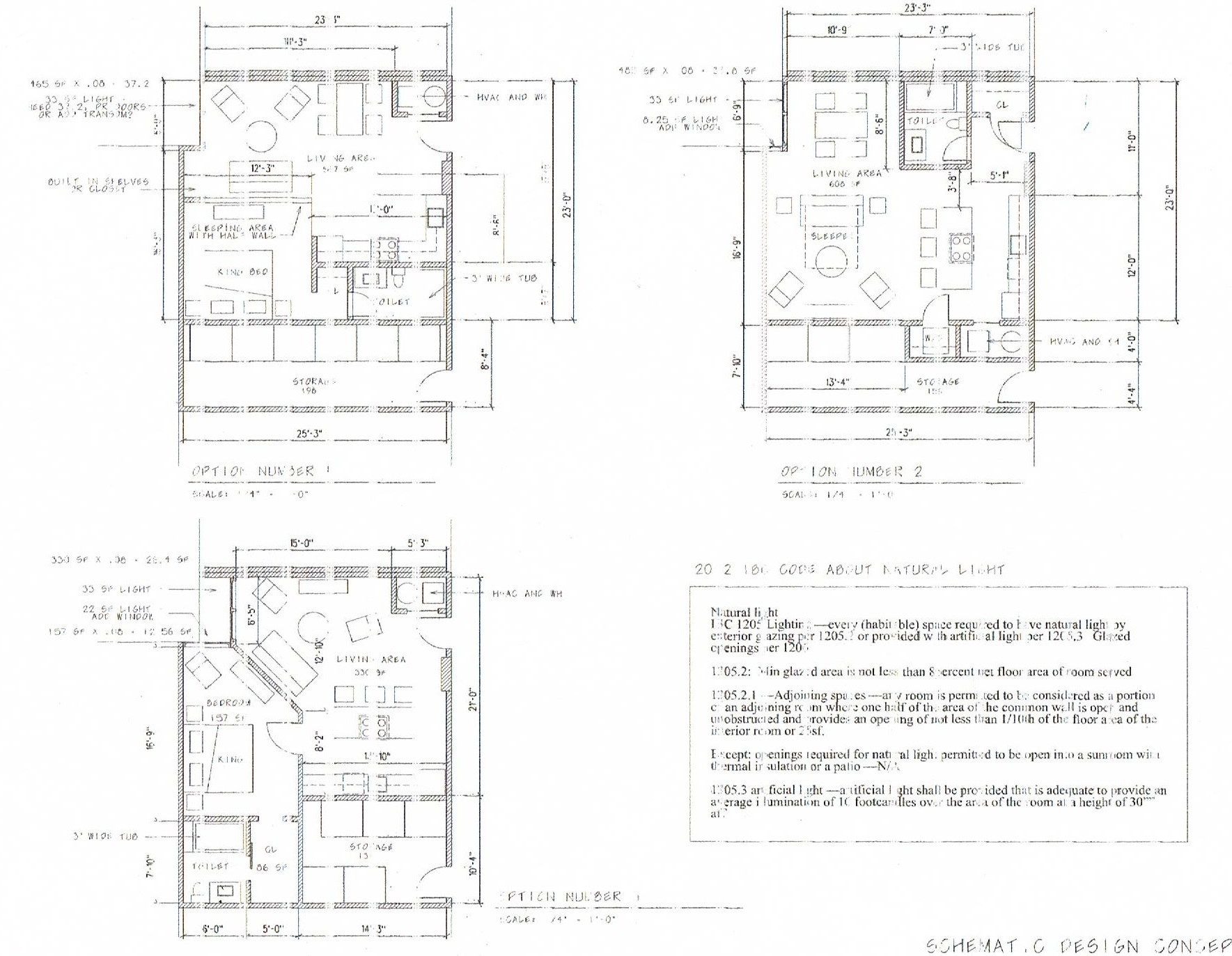
Storage Unit Concepts
These corner units, in an L niche, were intended as storage unit space for building tenants and community space (on the second floor) of the four floor tower.
As Phase II began on the property, the Client want to see if these units could become rentable spaces meeting code for a person or couple living there. Turco McCarthy provided three plan concepts to see what was feasible.
This project finished construction early 2017.









