A brand new palette.
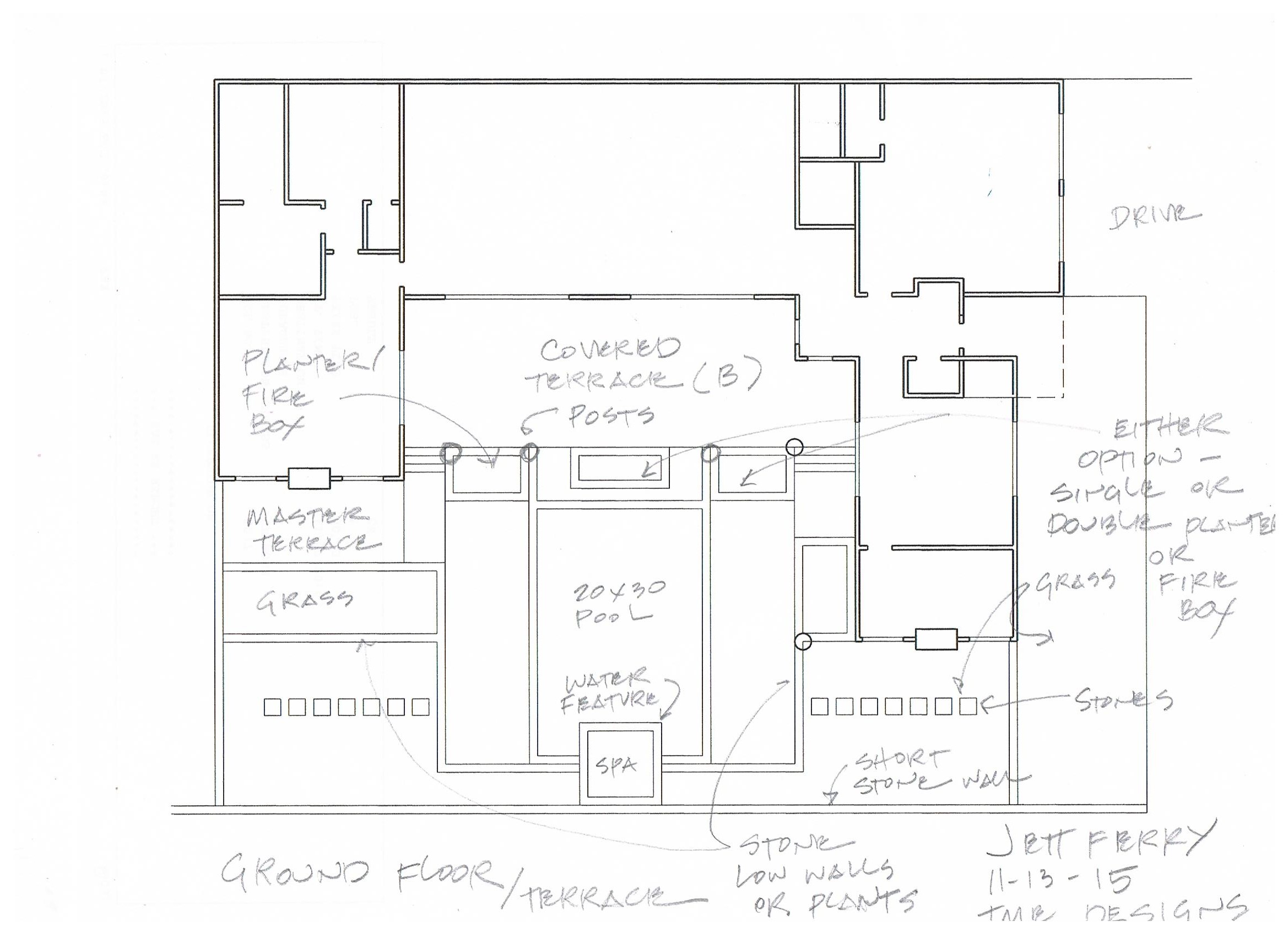
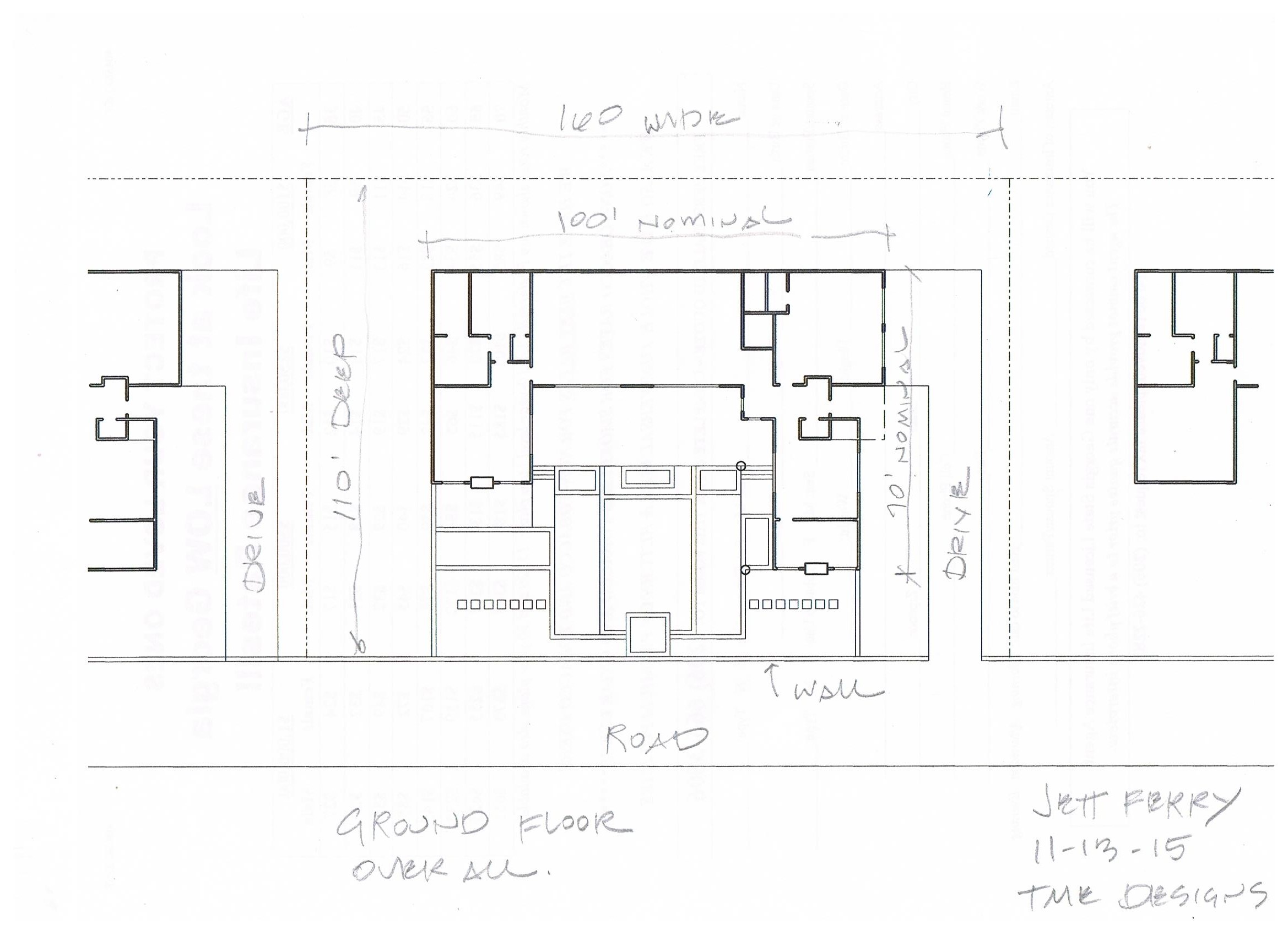
The Client provided a sketch of the site and a floor plan block out indicating how the residence was expected to sit on the site. Turco McCarthy was engaged to generate exterior images and a 3d model of the potential structure.
This Client preferred a traditional look versus a modern version, and we provided concepts with partial colored sketches.






