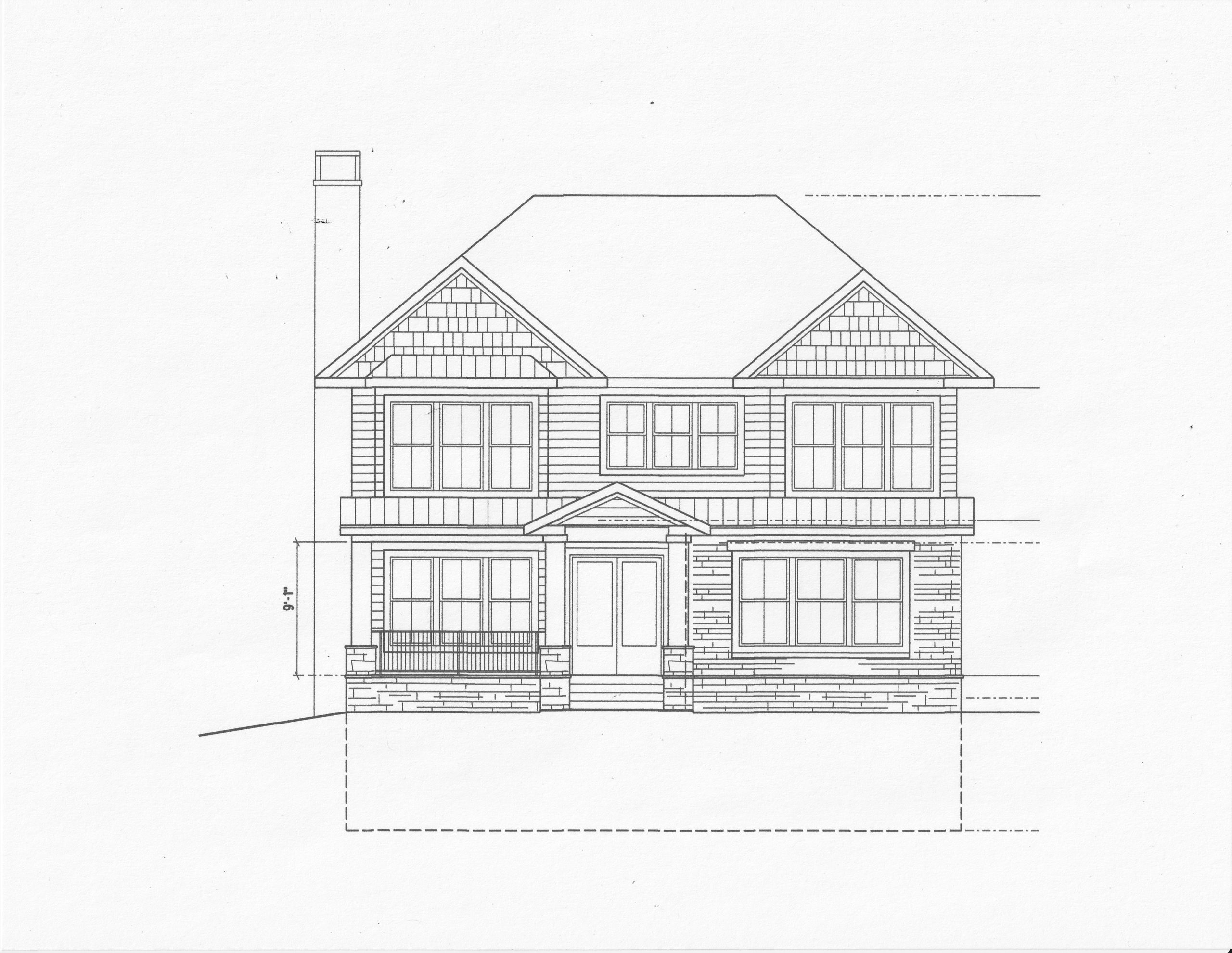
The clients hired Turco McCarthy to design their new forever home in the Dekalb County / Decatur area. They were builders with inspiration photos, particularly for the interior of the kitchen, which was to have lots of natural light, a large island and expansion into the screen porch by an operable wall. The main floor plan also expressed large halls with archways and millwork accents.
In the interim, the project has been posted for sale and is no longer a forever home. After our site visit we were disappointed to see that the kitchen concept is apparently no longer being executed as designed. We also wonder about the front entry change to not provide the posts and columns as drawn. Anchoring the wood truss into the adjacent brick wall is not appropriate, especially for a more traditional architecture vocabulary.
We are here to support our clients’ visions and we understand that projects change, drop and stop for many reasons. We write this to show that even subtle differences between an elevated drawn concept to actual build can be executed in the field differently by others so consider the benefit of following recommended design concepts by the architect or engaging them when changes or cuts are suggested.












