Our Clients were moving from their first home, a town home, and excited to purchase land and build new – their dream home. A young family was ready to invest in the dream home, their own words. My Client had an idea of style already in mind having looked at many homes with their realtor.
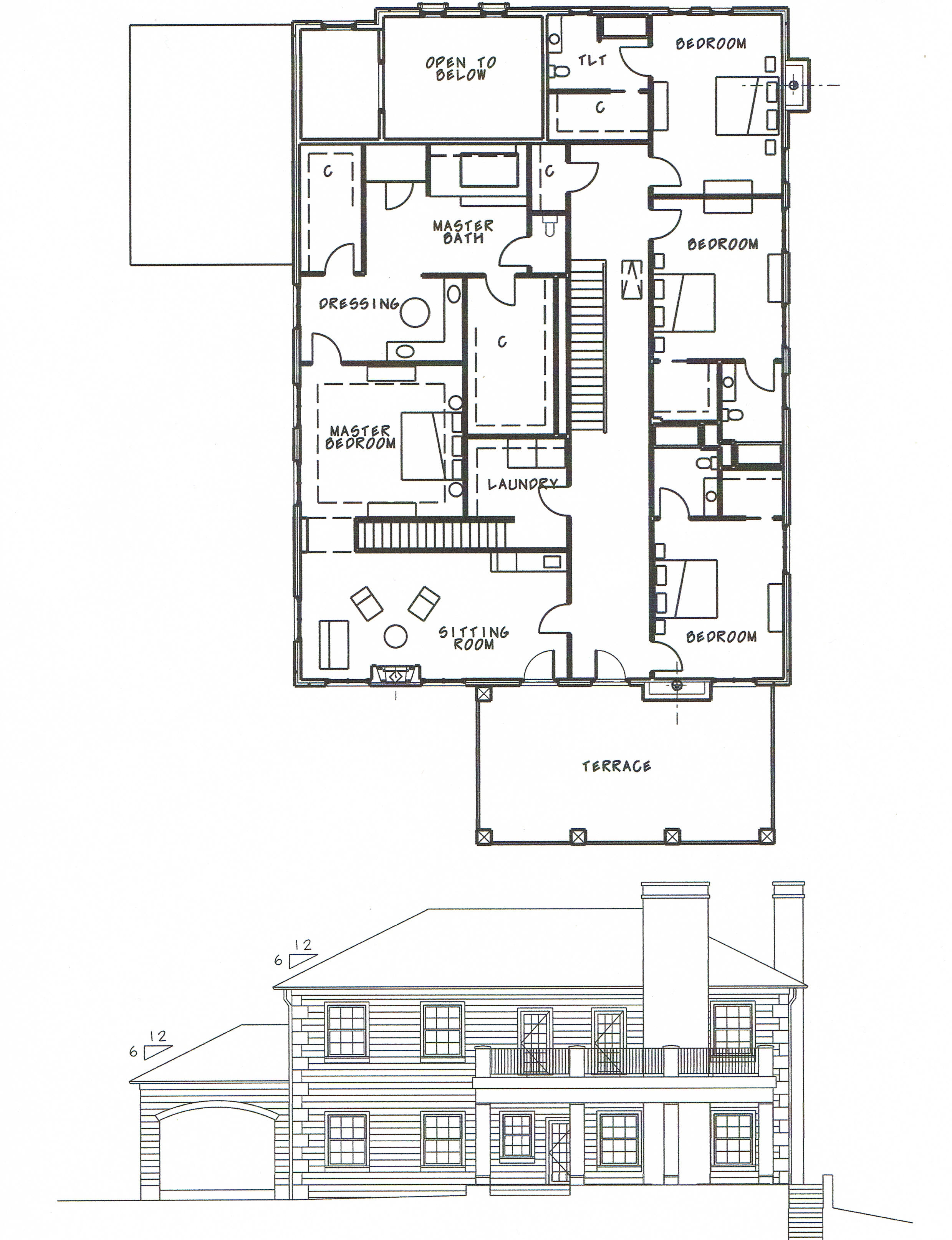
The project site already had a partial basement and floor plan concepts to work with. We adapted them from 9,000sf to 7,000 with a pool, pool deck and guest house. The new floor plan needed a three car garage with extra space for parking. There is the main floor, lower terrace level and second floor where the bedrooms were located.
The Clients also wanted to purchase all new furniture and assure that the furniture and all new FF&E coordinated so we recommended an interior designer to join the team. Collaborating with K Kong Designs, and the contractor during Client meetings, kept the project running smoothly and transition from design to permit documents to construction.
See the March 2015 “House Beautiful” edition for K Kong Designs article.


























