The Clients were planning a space for the time when a parent would move in with them. Their residence, a single story, had been recently renovated and the Clients did not want to go up with the expansion. They could not go back as the home’s footprint already came close to the permitted lot coverage.
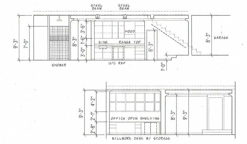
As the site sloped heavily to the rear, and the Clients had a basement garage, workroom and crawlspace, so, they decided on a crawlspace expansion.
Wanting it to feel like part of the main house and having its own entrance, the Clients opted for a corridor off the existing stairwell.
A couple of years later, the clients contacted Turco McCarthy to design an enclosure for the rear deck. They asked for a study to guarantee a vehicle could still part in the garage or sit under the structure.












