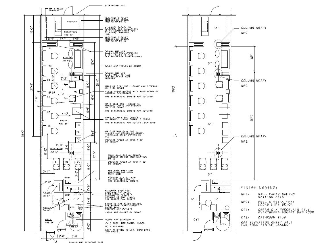
Turco McCarthy was approached to provide architecture services for a new hair salon in an existing tenant space.
We worked with the client, who purchased her own equipment and finishes, to lay out the floor plan and interior elevations for a permit document set then construction by a general contractor.
Five years later, we worked with the same client again to build out a second tenant location.




