Envisioning new spaces in an existing footprint or building shell.
Turco McCarthy provided as built documentation, design and spatial planning, permit documents, and FF&E selection.
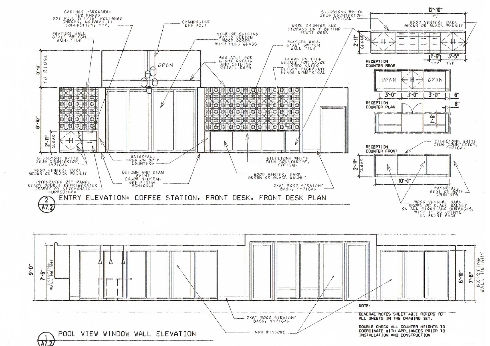
Using the footprint of an existing 5,000 sf active multifamily apartment leasing structure, Clients engaged Turco McCarthy to re program the space without adding square footage. We opened up the leasing lobby, moved the exercise room to the under used handball court, and created a new multi purpose room that can be rented in evenings by tenants for parties. Opening views to the pool deck as much as possible in height added to the space’s experience for new tenants and those in the multi purpose room.
FF&E collaboration with e3 designs. Furniture purchase by others.
This project is finishing construction October 2016 – finished photos will be posted then.













