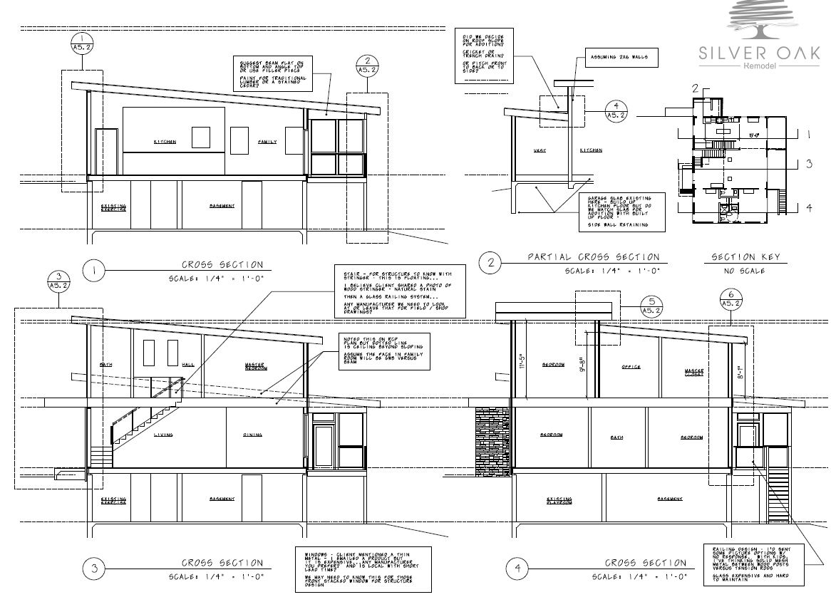
Teaming with design build firm, Silver Oak, Turco McCarthy was engaged to provide architecture design and construction drawings for a client looking to completely gut and rebuild their current residence.
Due to the local creek bed and flood zone, the new design stayed on the existing basement and used the existing exterior walls while the interior was restructured and a second floor added.
The client wanted to change the ranch style into a contemporary architecture vocabulary on the exterior with an open floor plan on the interior.
The solution was to vary the ceiling heights with views of the rear yard and different interior feeling spaces.








